FOR SALE: £385,000

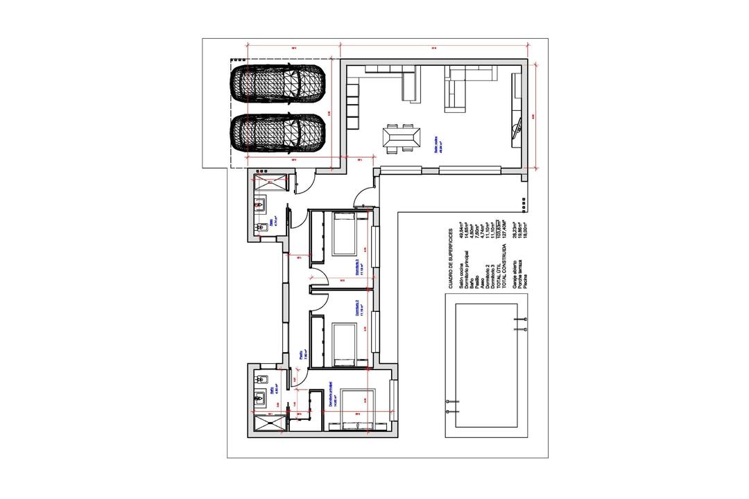
Modern New Build Villa on a Large Rustic Plot in Pinoso Contemporary Living in a Peaceful Rural Setting Discover this stylish new build villa located on a spacious rustic plot of 10.700 m2 on the outskirts of Pinoso, Alicante. Designed for those seeking privacy, tranquility and a close connection to nature, this modern home combines contemporary architecture with the charm of the Spanish countryside. Surrounded by vineyards, almond and olive groves, the property offers a serene lifestyle just a short drive from all local services. Spacious Single Level Villa with Private Pool The villa is distributed on one level and features 3 bedrooms and 2 bathrooms, one of them en suite. The open plan layout follows an L shape design, separating the living area from the sleeping quarters for added comfort and privacy. The day area boasts high ceilings that enhance the sense of space and flood the interior with natural light. Outside, you will enjoy a private terrace and swimming pool, perfect for relaxing and entertaining under the Mediterranean sun. The property also includes a covered parking area for two cars, all set within a large rustic plot that offers endless possibilities for gardening, leisure areas or simply enjoying the surrounding views. Modern Features and Quality Finishes This new build villa comes equipped with ducted air conditioning for year round comfort. The kitchen is fully fitted and equipped with appliances, offering a functional and elegant space for daily living. The modern design, combined with quality materials, ensures a comfortable and low maintenance home ideal for permanent living or a countryside retreat. Location Near Pinoso Town The property is located just outside the town of Pinoso, a charming inland village with a population of under 8000 inhabitants. Known for its relaxed pace of life and authentic Spanish atmosphere, Pinoso offers a wide range of amenities including bars, restaurants, shops, a 24 hour medical center, dentists, primary and secondary schools, a theater and a modern sports complex with outdoor pools, tennis courts, football fields and a gym. The town center of Pinoso is approximately 3 km away. Alicante city is around 55 km, while the white sandy beaches of the Costa Blanca are about 50 km away. Alicante International Airport is approximately 60 km from the property. The region is also close to the border with Murcia, adding further connectivity and lifestyle options. An Authentic Spanish Lifestyle Surrounded by Nature Living in Pinoso means enjoying a traditional rural lifestyle with almost no traffic, open landscapes and a strong sense of community. In February, the surrounding countryside comes alive with blooming almond trees, creating a spectacular natural display. Your Countryside Dream Home Awaits This modern new build villa in Pinoso offers the perfect balance between contemporary comfort and peaceful rural living. Contact us today for more information or to arrange a viewing and take the first step toward your new home in the Spanish countryside.

Share This Property

Features

  • 3 Bedrooms
  • 2 Bathrooms
  • Private Pool
  • Garden
  • Gated
  • Terrace: 19 Msq.
  • Parking - Space
  • Number of Parking Spaces: 2
  • Beach: 50000 Meters
  • Near Schools
  • Location: Rural
  • Useable Build Space: 103 Msq.
  • Double Bedrooms: 3

Make An Enquiry

Make An Enquiry